Toilettencontainer mieten
Sofort einsetzbare WC-Lösungen
Unsere WC-Container mit Toiletten, Urinalen und Handwaschbecken sind eine flexible und hygienische Lösung für Baustellen, Events, temporäre Projekte in Bayern.
Auf Wunsch übernehmen wir auch die Reinigung, Abwasserentsorgung und Wasserlieferung – unkompliziert alles aus einer Hand.


ALLES AUS EINER HAND
Mobile Toilettencontainer
Sie benötigen einen Toilettencontainer für Ihren temporären oder mobilen Einsatz? Unsere Toilettencontainer sind robust, funktional ausgestattet und auf hohe Besucher- oder Mitarbeiterfrequenz ausgelegt.
BY-CONTAINER übernimmt für Sie die komplette Abwicklung: von Transport und Aufbau über Strom- und Netzanschlüsse bis hin zu Service, Anpassung und Rückbau.
Sie sagen uns, was Sie vorhaben – wir liefern Ihnen die passende WC-Lösung.
EINSATZMÖGLICHKEITEN
Für wen sind unsere Toilettencontainer geeignet?
Baustellen
WC-Lösungen für Bauarbeiter ohne feste Sanitäranlagen oder als Ergänzung bei Großbaustellen
Veranstaltungen & Events
Besucher-WCs und zusätzliche Toiletten: hohe Kapazität, saubere Lösung und professioneller Auftritt für Gäste
Tourismus & Freizeit
Temporäre oder ergänzende Toiletten für Outdoor-Erlebnisse, mobile Gastronomie & Saisonbetriebe
Gewerbe, Industrie & Logistik
Zusätzliche WC-Kapazitäten, z.B. bei Sanierungen, Umbauten oder Erweiterungen
Forst- und Landwirtschaft
Mobile WC Container
für saisonale Arbeiten auf Feldern oder Waldflächen
Not- & Übergangslagen
Autarke WC-Lösungen im Notfall, bei Großveranstaltungen oder für temporäre Unterkünfte
MERKMALE
WC-Komfort für jeden Einsatz
Unsere Toilettencontainer sind robust gebaut und kommen frisch gereinigt und desinfiziert zu Ihnen. Je nach Bedarf stehen unterschiedliche Ausführungen mit Damen- und Herrenbereichen zur Verfügung. Folgende Merkmale haben alle Modelle gemeinsam:
- Stabile Stahlrahmenkonstruktion
- Witterungsbeständige Außenverkleidung
- Heizsystem für den Ganzjahreseinsatz
- Hygienisch reinigungsfreundliche Oberflächen
- Toiletten, Handwaschbecken, Seifenspender, Papierhandtuchspender

MIETMODELLE
Toilettencontainer mieten - mit allem, was dazu gehört
Unsere Toilettencontainer gibt es in verschiedenen Ausführungen: mini, klein, groß, mit oder ohne mobilem Abwassertank usw.
Die Container können einzeln aufgestellt oder in bestehende Anlagen integriert werden.
Technische Daten:
- Länge: 2.438 mm
- Breite: 2.990 mm
- Höhe: 2.850 mm
- Strom: 400 V / 32 A
- Frischwasser: 1 x 3/4” GEKA-Kupplung
- Abwasser: 1 x HT-Rohr NW 100

Das Produkt kann abweichen, die Zeichnung ist gegebenenfalls nicht maßstabsgetreu.
Toilettencontainer klein
Damen / Herren
(10 Fuß)
Dieser kompakte WC-Würfel der Basic Line bietet trotz geringer Fläche hohen Komfort und separate Zugänge für Damen und Herren.
- 3 m x 2,5 m (ca. 7,5 m2)
- 4-6 Personen
- Damen: 2 Toiletten, 1 Waschbecken,
- Herren: 1 Toilette, 1 Urinal, 1 Waschbecken
- jeweils Seifenspender, Papierhandtuchspender, Heizung
Technische Daten:
- Länge: 6.058 mm
- Breite: 2.438 mm
- Höhe: 2.791 mm
- Strom: 400 V / 32 A
- Frischwasser: 1 x 3/4” GEKA-Kupplung
- Abwasser: 1 x HT-Rohr NW 100

Das Produkt kann abweichen, die Zeichnung ist gegebenenfalls nicht maßstabsgetreu.
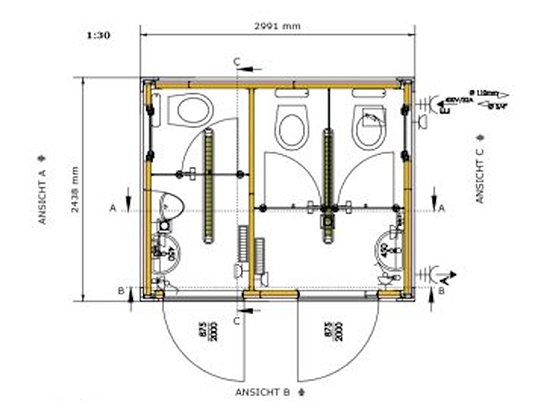
Toilettencontainer groß
Damen / Herren
(20 Fuß)
Dieser Damen- & Herren WC Container bietet separate Bereiche mit vier Türen für eine gleichzeitige Nutzung.
- 6 m x 2,5 m (ca. 15 m2)
- 7-9 Personen
- Damen: 3 Toiletten, 2 Waschbecken
- Herren: 1 Toilette, 4 Urinale, 2 Waschbecken
- jeweils Seifenspender, Papierhandtuchspender, Heizung
Technische Daten:
- Länge: 6.058 mm
- Breite: 2.438 mm
- Höhe: 2.791 mm
- Strom: 400 V / 32 A
- Frischwasser: 2 x 3/4” GEKA-Kupplung
- Abwasser: 2 x HT-Rohr NW 100

Das Produkt kann abweichen, die Zeichnung ist gegebenenfalls nicht maßstabsgetreu.
Toilettencontainer groß
Damen mit Vorraum
(20 Fuß)
Dieser WC Container überzeugt durch seine durchdachte Aufteilung mit drei separaten Zugängen und einem praktischen Vorraum.
- 6 m x 2,5 m (ca. 15 m2)
- 4-8 Personen
- 4 Toiletten, 4 Waschbecken, Seifenspender, Papierhandtuchspender, Heizung
ZUSATZAUSSTATTUNG
Ergänzungen für Ihren individuellen Bedarf
Ist am Einsatzort kein Wasser- oder Abwasseranschluss vorhanden, können unsere Toilettencontainer mit mobilen Frischwasser- und Abwassertanks ausgestattet werden. Diese autarken Systeme ermöglichen einen unabhängigen Betrieb – ideal für Baustellen im Rohbau, Veranstaltungen auf Freiflächen, landwirtschaftliche Flächen oder temporäre Einsatzstellen.
Ergänzend stellen wir Ihnen passendes Zubehör für einen sicheren und funktionalen Betrieb bereit – von Anstelltreppen und Podesten über Sicherungszäune bis hin zu Beleuchtung oder weiterem projektspezifischem Equipment.
Beispiele an Zubehör:
- Hochtemperatur-Rohr (HT-Rohr)
- Abwasserbögen
- Frischwasserleitung (ohne Begleitheizung)
- Stromkabel
- Stromschleife
- Kanalabdeckung
Sie haben schon einen Toilettencontainer? Mit unserem Zubehör machen wir ihn schnell vollständig einsatzbereit.
DIENSTLEISTUNGEN
Services rund um den Toilettencontainer

Abwasserentsorgung
- Anfahrt und Abpumpen vor Ort
- Entsorgung von Abwasser und Fäkalien
- Lieferung in entsprechende Kläranlagen
- optional: regelmäßig feste Abholintervalle

Frischwasserversorgung
- Lieferung von Frischwasser
- Fachgerechte Befüllung der Frischwassertanks
- optional: regelmäßige, feste Lieferintervalle
- optional: kurzfristige Nachlieferung bei Mehrbedarf

Unterhaltsreinigung
- Regelmäßige Innenreinigung (nass/trocken) sämtlicher Oberflächen
- Nachfüllen von Verbrauchsmaterialien
- Sichtkontrolle auf Schäden oder Mängel
- Einhaltung geltender Hygienestandards
- optional: Reinigung auf Abruf (24/7 erreichbar)
FAQ
Häufige Fragen
Hier finden Sie Antworten auf häufige Fragen rund um unsere WC Container.
Welche Ausstattung haben die Toilettencontainer standardmäßig?
Unsere Toilettencontainer verfügen über mindestens eine Toilette im Damen- und Herrenbereich, mindestens ein Urinal im Herrenbereich, über Handwaschbecken, Seifenspender, Papierhandtuchspender und eine Heizung 2 kW.
Alle Modelle erfüllen hohe Hygienestandards und sind sofort einsatzbereit.
Ich suche einen WC Container mit Dusche. Bieten Sie das auch an?
Ja, na klar. Container mit WC und Dusche heißen bei uns „Sanitärcontainer“. Schauen Sie dort mal nach!
Welche Vorraussetzungen müssen erfüllt sein, wenn ich einen Toilettencontainer mieten möchte?
Damit Ihr Toilettencontainer problemlos aufgestellt werden kann, sollte der Untergrund eben, tragfähig und für ein Schwerlastfahrzeug gut erreichbar sein (bis 20t, 20m Länge, 3m Breite, 4m Durchfahrtshöhe) .
Sie müssen sich außerdem um die benötigten Anschlüsse (Strom, Wasser, Abwasser) sowie um eventuell notwendige Genehmigungen kümmern. Auf Wunsch übernehmen wir das für Sie!
Welche Anschlüsse sind für die Toilettencontainer nötig?
Unsere Container benötigen einen 32A-Stromanschluss (Baustrom), einen Wasseranschluss mit ¾-Zoll und einen Abwasseranschluss mit 100 mm Durchmesser.
Falls kein Netzanschluss vorhanden ist, gibt es Alternativen: Die Wasserversorgung kann über einen separaten Frischwassertank erfolgen, und das Abwasser wird in einem Abwassertank gesammelt.
Ein Stromaggregat ist ebenfalls möglich, jedoch recht kostspielig.
Ich benötige einen Toilettencontainer mit Tank. Haben Sie das auch?
Na klar!
Falls kein Netzanschluss vorhanden ist, kann die Wasserversorgung kann über einen separaten Frischwassertank erfolgen, und das Abwasser wird in einem mobilen Abwassertank gesammelt.
Sagen Sie uns, was Sie brauchen, wir machen es passend!
Kann ich die Mietdauer von meinem Toilettencontainer verlängern?
Ja, eine Verlängerung der Mietdauer ist jederzeit möglich, sofern der Container weiterhin verfügbar ist. Sollte das nicht der Fall sein, stellen wir Ihnen gerne eine gleichwertige Alternative bereit.
Falls Sie zusätzliche Kapazitäten benötigen, kann der bestehende Container auch kostenpflichtig erweitert oder gegen ein anderes Modell ausgetauscht werden.
KUNDENSTIMMEN
Das sagen unsere Kunden

Bei der Realisierung größerer Projekte im kommunalen Bereich und auch der Veranstaltungsszene greifen wir immer wieder gerne auf die bewährten Containerlösungen von BY-CONTAINER zurück. BY-CONTAINER ist für uns der Top-Partner, um herausfordernde Aufträge zuverlässig zu stemmen. Ich kann den Anbieter uneingeschränkt weiterempfehlen.
Victor Russo
Containi GmbH

Ich wollte mich gerne nochmal bei Ihnen melden und mich bedanken für den reibungslosen Ablauf und die gute Zusammenarbeit. Es hat alles prima geklappt. Der Container war prima und auch Ihr Fahrer war sehr nett.
Hanna Rau
Hofgut Friemar

Kommunikation von allen Seiten einwandfrei! Lieferung, Abholung, Produkt usw. alles super!
Isabell Stepper
MEPS GmbH

Im Rahmen diverser Cateringprojekte freuen wir uns sehr darüber in BY-CONTAINER den perfekten Partner für anspruchsvolle Sanitär- und Kühllösungen gefunden zu haben. Das Unternehmen trägt nicht unerheblich dazu bei, dass jede unserer Veranstaltungen zum vollen Erfolg wird.
Andreas Stadler
Novita Handel und Service

Die Begleitung durch unseren Partner BY-CONTAINER bei unseren Veranstaltungen im behördlichen und kommunalen Umfeld war durchweg überzeugend. Planung, Abstimmung und Umsetzung erfolgten professionell und mit großem Verständnis für die speziellen Rahmenbedingungen im öffentlichen Bereich.
Eine kompetente und vertrauensvolle Zusammenarbeit, die wir jederzeit weiterempfehlen.
Thomas Röhling
Klo4U GmbH

Für unsere Großveranstaltungen mit hohen Besucherzahlen ist die Zusammenarbeit jedes Mal aufs Neue absolut zuverlässig und professionell. Die gesamte Abwicklung verläuft immer termingerecht und reibungslos.
Besonders überzeugt uns die ausgeprägte Kundenorientierung und Flexibilität – selbst bei kurzfristigen Herausforderungen, kritischer Infrastrukturen oder zusätzlichem Bedarf wird schnell und lösungsorientiert reagiert. Egal ob Feiertag oder an den Wochenenden, egal ob Tag oder Nacht.
Klare Empfehlung für Veranstaltungen jeder Größenordnung!
Bastian Schleich
Permanent Entertainment

Wir arbeiten regelmäßig mit der Firma BY-Container zusammen und schätzen das außergewöhnlich hohe Know-how sowie die praxisnahe Lösungsorientierung sehr. Insbesondere bei großen kommunalen Aufgabenstellungen und unter schwierigen Rahmenbedingungen überzeugt BY-Container durch Erfahrung, Zuverlässigkeit und Flexibilität.
Auch bei Einsätzen unter besonderen Anforderungen, etwa Übungen der Armee in unwegsamem Gelände, zeigt sich, dass hier echte Profis am Werk sind, die nicht nur theoretisch planen, sondern praxisgerecht umsetzen.
Besonders hervorzuheben ist, dass bei auftretenden Problemen sehr schnell reagiert wird und stets unkomplizierte, pragmatische Lösungen im Sinne des Auftraggebers gefunden werden. Die Zusammenarbeit ist durchweg professionell, unkompliziert und lösungsorientiert. Termine werden eingehalten, Herausforderungen realistisch eingeschätzt und souverän gemeistert.
Aus unserer Sicht ein absolut verlässlicher Partner, den wir uneingeschränkt weiterempfehlen.
Markus Kranzer
AWE Umweltservice GmbH

Bereits seit längerer Zeit arbeiten wir erfolgreich mit BY-CONTAINER zusammen und haben gemeinsam mehrere Veranstaltungen realisiert. Die kontinuierliche professionelle Zusammenarbeit hat über die Jahre ein hohes Maß an Vertrauen geschaffen, auf das wir uns jederzeit verlassen können.
Hervorzuheben sind insbesondere die netten und zugleich sehr kompetenten Ansprechpartner, die jederzeit lösungsorientiert agiert haben. Die Kommunikation war stets transparent und verbindlich, wodurch Abstimmungen schnell und reibungslos erfolgen konnten. Auch die Bearbeitungszeiten waren bemerkenswert zügig – selbst bei kurzfristigen Anforderungen.
Insgesamt eine sehr professionelle Leistung, die wir gerne weiterempfehlen und bei zukünftigen Projekten erneut in Anspruch nehmen werden.
Alexander Thiel
Craft Veranstaltungs AG München

Im Rahmen unserer mehrtägigen Veranstaltungen mit entsprechend hohem organisatorischen und logistischem Aufwand war die Zusammenarbeit mit BY-CONTAINER durchweg unkompliziert und zuverlässig. Gerade bei Projekten dieser Größenordnung sind eine präzise Planung und flexibel Umsetzung entscheidend – beides wurde hier in vollem Umfang erfüllt.
Besonders hervorzuheben ist die ständige Erreichbarkeit sowie die durchgehend strukturierte und transparente Kommunikation. Abstimmungen verliefen effizient, Rückmeldungen erfolgten zeitnah und auch bei kurzfristigen Anpassungen wurden schnell praktikable Lösungen gefunden.
Die gesamte Abwicklung – von Planung über die termingerechte Lieferung bis hin zur Betreuung während der Veranstaltung war hervorragend. Wir schätzen die partnerschaftliche Zusammenarbeit sehr.
Professionell, zuverlässig und absolut empfehlenswert – wir freuen uns auf weitere gemeinsame Projekte!
Patrick Gallenmüller
Lemon AG