Sanitärcontainer mieten
Saubere Sanitärlösungen auf Zeit
Sanitärcontainer sind die ideale Lösung, wenn vor Ort kurzfristig oder temporär zuverlässige, hygienische Sanitäreinrichtungen benötigt werden. So haben Menschen jederzeit Zugang zu WC-, Wasch- und Duschmöglichkeiten.
ALLES AUS EINER HAND
Mobile Sanitärcontainer
Sie benötigen einen Sanitärcontainer mit WC und Dusche für Ihren temporären oder mobilen Einsatz? Wir haben eine komfortable, hygienische Lösung, die sofort einsatzbereit ist.
BY-CONTAINER übernimmt für Sie die komplette Abwicklung: von Transport und Aufbau über Anschlüsse bis hin zu Service und Abwasserentsorgung.
Sie sagen uns, was Sie vorhaben – wir liefern Ihnen eine komplette Sanitärlösung.
EINSATZMÖGLICHKEITEN
Für wen sind unsere Sanitärcontainer geeignet?
Baustellen
Kombinierte WC- und Duschlösungen für Bauprojekte jeder Größe
Veranstaltungen & Events
Sanitärkomfort für Besucher, Crew und Künstler bei Veranstaltungen jeder Art
Tourismus & Freizeit
WC- und Duschcontainer für Outdoor-Erlebnisse, mobile Gastronomie & Saisonbetriebe
Gewerbe, Industrie & Logistik
Zusätzliche Kapazitäten , z.B. bei Sanierungen, Umbauten oder Erweiterungen
Forst- und Landwirtschaft
Mobile WC Dusch Container für saisonale Arbeiten auf Feldern oder Waldflächen
Not- & Übergangslagen
Autarke Sanitärversorgung im Notfall, bei Großveranstaltungen oder für temporäre Unterkünfte
MERKMALE
Sanitärkomfort für jeden Einsatz
Unsere Sanitärcontainer sind robust gebaut und kommen frisch gereinigt und desinfiziert zu Ihnen. Neben Duschen, Toiletten, Urinalen und Handwaschbecken sind das die Merkmale:
- Stabile Stahlrahmenkonstruktion
- Witterungsbeständige Außenverkleidung
- Heizsystem für den Ganzjahreseinsatz
- Rutschhemmender, wasserfester Bodenbelag
- Hygienisch reinigungsfreundliche Oberflächen
MIETMODELLE
Sanitärcontainer mieten - mit allem, was dazu gehört
Unsere Sanitärcontainer gibt es in verschiedenen Ausführungen: mini, klein, groß, mit oder ohne mobilem Abwassertank usw.
Die Container können einzeln aufgestellt oder in bestehende Anlagen integriert werden.
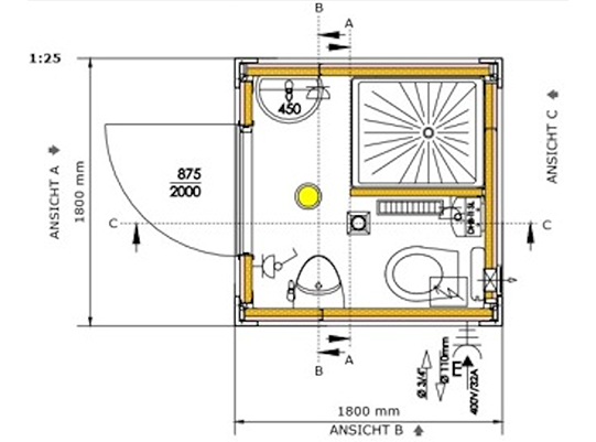
Technische Daten:
- Länge: 1.800 mm
- Breite: 1.800 mm
- Höhe: 2.800 mm
- Strom: 400 V / 32 A
- Frischwasser: 1 x 3/4” GEKA-Kupplung
- Abwasser: 1 x HT-Rohr NW 100
Sanitärcontainer mini
(6 Fuß)
Gerade auf kleinen Flächen findet unser Mini-Container immer noch Platz und sorgt für die nötige Privatsphäre und Befriedigung von Grundbedürfnissen.
- 1,8 m x 1,8 m (ca. 3 m2)
- 1-3 Personen
- 1 Dusche, 1 WC, 1 Urinal, 1 Waschbecken
Technische Daten:
- Länge: 2.990 mm
- Breite: 2.438 mm
- Höhe: 2.800 mm
- Strom: 400 V / 32 A
- Frischwasser: 1 x 3/4” GEKA-Kupplung
- Abwasser: 1 x HT-Rohr NW 100
Sanitärcontainer klein
(10 Fuß)
Dieser Container ist dank der platzsparenden Kombination aus Dusche und WC ideal für Baustellen und Events – und überzeugt durch eine optimale Kosten-Nutzen-Kalkulation.
- 3 m x 2,5 m (ca. 7,5 m2)
- 3-5 Personen
- 1 Dusche, 1 WC, 1 Urinal, 2 Waschbecken
Technische Daten:
- Länge: 6.058 mm
- Breite: 2.438 mm
- Höhe: 2.791 mm
- Strom: 400 V / 32 A
- Frischwasser: 1 x 3/4” GEKA-Kupplung
- Abwasser: 1 x HT-Rohr NW 100
Sanitärcontainer groß
(20 Fuß)
Dieses Modell ist eine clevere Kompaktlösung mit getrennten Bereichen für mehr Komfort und Privatsphäre.
Er ist von drei Seiten begehbar und lässt sich flexibel mit anderen Modulen kombinieren.
- 6 m x 2,5 m (ca. 15 m2)
- 6-10 Personen
- 2 Duschen, 2 Toiletten, 2 Urinale, 4 Waschbecken
ZUSATZAUSSTATTUNG
Ergänzungen für Ihren individuellen Bedarf
Nicht überall stehen feste Wasser- und Abwasseranschlüsse zur Verfügung. Für solche Einsatzorte bieten wir Sanitärcontainer mit mobilen Frischwasser- und Abwassertanks an. Diese autarken Lösungen ermöglichen einen vollständig unabhängigen Betrieb – ideal für abgelegene Baustellen, temporäre Veranstaltungen auf Freiflächen, landwirtschaftliche Flächen oder Notfalleinsätze.
Unser Zubehör:
- Mobiler Trinkwassertank
- Mobiler Abwassertank
- Mobiler Handdesinfektionsspender
- Stromkabel
- Frischwasserschlauch
- Anstelltreppe
- Sicherungszaun
Sie haben schon einen Sanitärcontainer? Mit unserem Zubehör machen wir ihn schnell vollständig einsatzbereit.
DIENSTLEISTUNGEN
Services rund um den Sanitärcontainer
Abwasserentsorgung
- Anfahrt und Abpumpen vor Ort
- Entsorgung von Abwasser und Fäkalien
- Lieferung in entsprechende Kläranlagen
- optional: regelmäßig feste Abholintervalle
Frischwasserversorgung
- Lieferung von Frischwasser
- Fachgerechte Befüllung der Frischwassertanks
- optional: regelmäßige, feste Lieferintervalle
- optional: kurzfristige Nachlieferung bei Mehrbedarf
Unterhaltsreinigung
- Regelmäßige Innenreinigung (nass/trocken) sämtlicher Oberflächen
- Nachfüllen von Verbrauchsmaterialien
- Sichtkontrolle auf Schäden oder Mängel
- Einhaltung geltender Hygienestandards
- optional: Reinigung auf Abruf (24/7 erreichbar)
FAQ
Häufige Fragen
Hier finden Sie Antworten auf häufige Fragen rund um unsere Sanitärcontainer Vermietung.
Welche Ausstattung haben die Sanitärcontainer standardmäßig?
Unsere Sanitärcontainer verfügen über mindestens eine Dusche mit Duschvorhang, ein WC, ein Urinal, ein Waschbecken und eine Heizung.
Alle Modelle erfüllen hohe Hygienestandards und sind sofort einsatzbereit.
Ich suche einen Sanitärcontainer mit Dusche und ohne WC. Gibt es den auch?
Ja, den gibt es. Sanitärcontainer mit Dusche heißen bei uns „Duschcontainer“. Schauen Sie dort mal nach!
Welche Vorraussetzungen müssen erfüllt sein, wenn man einen Sanitärcontainer mieten möchte?
Damit Ihr Sanitärcontainer problemlos aufgestellt werden kann, sollte der Untergrund eben, tragfähig und für ein Schwerlastfahrzeug gut erreichbar sein (bis 20t, 20m Länge, 3m Breite, 4m Durchfahrtshöhe) .
Sie müssen sich außerdem um die benötigten Anschlüsse (Strom, Wasser, Abwasser) sowie um eventuell notwendige Genehmigungen kümmern. Auf Wunsch übernehmen wir das für Sie!
Kann ich die Sanitärcontainer auch im Winter nutzen?
Ja, unsere Sanitärcontainer sind beheizt und somit auch im Winter zuverlässig nutzbar.
Alle Leitungen und Anschlüsse sind frostgeschützt, sodass ein reibungsloser Betrieb auch bei niedrigen Temperaturen gewährleistet ist.
Welche Anschlüsse sind für die Container nötig – und was, wenn kein Netzanschluss vorhanden ist?
Unsere Container benötigen einen 32A-Stromanschluss (Baustrom), einen Wasseranschluss mit ¾-Zoll und einen Abwasseranschluss mit 100 mm Durchmesser.
Falls kein Netzanschluss vorhanden ist, gibt es Alternativen: Die Wasserversorgung kann über einen separaten Frischwassertank erfolgen, und das Abwasser wird in einem Abwassertank gesammelt.
Ein Stromaggregat ist ebenfalls möglich, jedoch recht kostspielig.
Kann ich den Container während der Mietzeit erweitern, austauschen oder die Mietdauer verlängern?
Ja, beides ist grundsätzlich möglich. Wenn Sie zusätzlichen Platz benötigen, kann der bestehende Container kostenpflichtig erweitert oder gegen ein anderes Modell ausgetauscht werden – dabei fallen Transport- und eventuelle Anpassungskosten an.
Auch eine Verlängerung der Mietdauer ist jederzeit möglich, sofern der Container weiterhin verfügbar ist. Sollte das nicht der Fall sein, stellen wir Ihnen gerne eine gleichwertige Alternative bereit.
KUNDENSTIMMEN
Das sagen unsere Kunden
Bei der Realisierung größerer Projekte im kommunalen Bereich und auch der Veranstaltungsszene greifen wir immer wieder gerne auf die bewährten Containerlösungen von BY-CONTAINER zurück. BY-CONTAINER ist für uns der Top-Partner, um herausfordernde Aufträge zuverlässig zu stemmen. Ich kann den Anbieter uneingeschränkt weiterempfehlen.
Victor Russo
Containi GmbH
Ich wollte mich gerne nochmal bei Ihnen melden und mich bedanken für den reibungslosen Ablauf und die gute Zusammenarbeit. Es hat alles prima geklappt. Der Container war prima und auch Ihr Fahrer war sehr nett.
Hanna Rau
Hofgut Friemar
Andreas Stadler
Novita Handel und Service
Kommunikation von allen Seiten einwandfrei! Lieferung, Abholung, Produkt usw. alles super!
Isabell Stepper
MEPS GmbH
Die Begleitung durch unseren Partner BY-CONTAINER bei unseren Veranstaltungen im behördlichen und kommunalen Umfeld war durchweg überzeugend. Planung, Abstimmung und Umsetzung erfolgten professionell und mit großem Verständnis für die speziellen Rahmenbedingungen im öffentlichen Bereich.
Eine kompetente und vertrauensvolle Zusammenarbeit, die wir jederzeit weiterempfehlen.
Thomas Röhling
Klo4U GmbH