Bürocontainer mieten
Flexible Arbeitsräume auf Zeit
Ob als Aufenthalts-, Umkleide- oder Pausenlösung: Unsere individuell konfigurierbaren Bürocontainer bieten flexible Nutzungsmöglichkeiten und schaffen den nötigen Raum zum Arbeiten und Erholen.


ALLES AUS EINER HAND
Mobile Bürocontainer
Sie benötigen einen Bürocontainer für Ihren temporären oder mobilen Einsatz? Wir bieten Ihnen funktionale, komfortable Arbeitsräume, die sofort einsatzbereit sind – flexibel, zuverlässig und professionell ausgestattet.
BY-CONTAINER übernimmt für Sie die komplette Abwicklung: von Transport und Aufbau über Strom- und Netzanschlüsse bis hin zu Service, Anpassung und Rückbau.
Sie sagen uns, was Sie vorhaben – wir liefern das passende Büro als Komplettlösung.
EINSATZMÖGLICHKEITEN
Für wen sind unsere Bürocontainer geeignet?
Baustellen
Bürocontainer als zentrale Anlaufstelle für Bauleitung, Organisation und Abstimmung direkt auf der Baustelle
Veranstaltungen & Events
Bürocontainer für Planung, Ablaufsteuerung und Verwaltung
Tourismus & Freizeit
Saisonale Büro-, Empfangs- oder Organisationsräume für den laufenden Betrieb
Gewerbe, Industrie & Logistik
Kurzfristige vollwertige Büroflächen für Projektarbeit, Übergangslösungen und temporäre Verwaltungsaufgaben
Forst- und Landwirtschaft
Verwaltung, Einsatzplanung und Dokumentation direkt am Betrieb oder in unmittelbarer Nähe der Einsatzflächen
Not- & Übergangslagen
Verwaltung, Einsatzplanung und Dokumentation direkt am Betrieb oder in unmittelbarer Nähe der Einsatzflächen
MERKMALE
Maximale Funktionalität an jedem Standort
Egal welche Ausführung, unsere Bürocontainer verfügen über folgende grundsätzlichen Merkmale:
- Stabile Stahlrahmenkonstruktion
- Witterungsbeständige Außenverkleidung
- Elektrische Grundinstallation
- Heizsystem für den Ganzjahreseinsatz
- Fenster für Tageslicht und Belüftung
- Abschließbare Eingangstür
- Arbeitsplatztaugliche Beleuchtung
- Magnetische Wandelemente

MIETMODELLE
Bürocontainer mieten - mit allem, was dazu gehört
Unsere Bürocontainer gibt es in verschiedenen Ausführungen: klein, groß, mit/ohne WC, mit/ohne Dusche usw.
Sie können sowohl einzeln genutzt als auch in bestehende Anlagen integriert werden.
Technische Daten:
- 2 x Doppelflügelfenster mit Dreh-/Kippbeschlag, Kunststoffrollladen
- 1 x ZK-Türelement Hörmann 875 x 2.000 mm
- 1 x Türhalter/Willyhaken
- 1 x E-Konvektor 2 KW
- 1 x BAP-Spiegelrasterleuchte 2x36W
- 1 x Kabeldurchführung (auf Anfrage)
- 3 x Doppelsteckdose
- 2 x CEE-Steckverbindungen 400V/32A

Das Produkt kann abweichen, die Zeichnung ist gegebenenfalls nicht maßstabsgetreu.
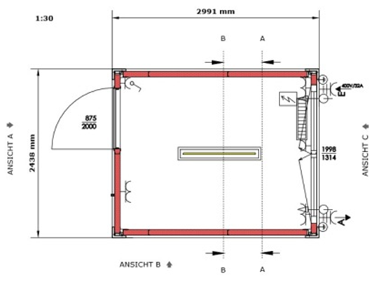
Bürocontainer klein
(10 Fuß)
Unser kleinstes Standardmodell überzeugt durch maximale Flexibilität und findet nahezu überall Platz.
- 3 m x 2,5 m (ca. 7,5 m2)
- 1-3 Personen
- 2 Fenster, 1 Tür, magnetische Wandelemente, arbeitsplatztaugliche Beleuchtung
Technische Daten:
- 1 x Doppelflügelfenster mit Dreh-/Kippbeschlag, Kunststoffrollladen
- 1 x ZK-Türelement Hörmann 875 x 2.000 mm
- 1 x Türhalter/Willyhaken
- 1 x E-Konvektor 2 KW
- 2 x BAP-Spiegelrasterleuchte 2x36W
- 1 x Nurglasleuchte
- 1 x Kabeldurchführung
- 5 x Doppelsteckdosen
- 1 x Schalter-/Steckdosenkombination
- 2 x CEE-Steckverbindungen 400V/32A

Das Produkt kann abweichen, die Zeichnung ist gegebenenfalls nicht maßstabsgetreu.
Bürocontainer groß
(20 Fuß)
Die größere multifunktionale Lösung unseres Basismodells schafft zusätzlichen Raum überall dort, wo Sie ihn brauchen.
- 6 m x 2,5 m (ca. 15 m2)
- 4-6 Personen
- 2 Fenster, 1 Tür, magnetische Wandelemente, arbeitsplatztaugliche Beleuchtung
Technische Daten:
- 2 x Doppelflügelfenster mit Dreh-/Kippbeschlag, Kunststoffrollladen
- 1 x ZK-Türelement Hörmann 875 x 2.000 mm
- 1 x Türhalter/Willyhaken
- 2 x E-Konvektor 2 KW
- 4 x BAP-Spiegelrasterleuchte 2x36W
- 2 x Nurglasleuchte
- 2 x Kabeldurchführung
- 8 x Doppelsteckdose
- 2 x Wechselschalter/Steckdosenkombination
- 4 x CEE-Steckverbindungen 400V/32

Das Produkt kann abweichen, die Zeichnung ist gegebenenfalls nicht maßstabsgetreu.
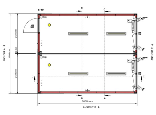
Doppelcontainer Büro
(2 x 20 Fuß)
Mehr Raum für effizientes Arbeiten – ideal als temporäres Büro, Besprechungsraum oder Bauleitung mit Platz für mehrere Arbeitsplätze.
- 6 m x 5 m (ca. 30 m2)
- 8-12 Personen
- 2 x Bürocontainer mit je 2 Fenstern, 1 Tür, magnetischen Wandelementen, arbeitsplatztauglicher Beleuchtung
Technische Daten (1/2):
- 1 x Doppelflügelfenster mit Dreh-/Kippbeschlag, Kunststoffrollladen
- 1 x Sanitärfenster 650 x 500 mm mit Kippbeschlag
- 3 x ZK-Türelement Hörmann 875 x 2.000 mm, 1 x Türhalter/Willyhaken
- 1 x Windfang
- 1 x E-Konvektor 2 KW, 1 x E-Konvektor 1 KW
- 2 x BAP-Spiegelrasterleuchte 2x36W, 2 x Nurglasleuchte
- 1 x Kabeldurchführung
- 6 x Doppelsteckdose, 2 x Einzelsteckdose
- 3 x Schalter, 2 x CEE-Steckverbindungen 400V/32A
Technische Daten (2/2):
- 1 x Handwaschbecken 450 x 320mm incl. Einhebelmischbaterie (Standard Kaltwasser)
- 1 x WC-Kabine mit WC und Spülkasten
- 1 x Feuchtraumlüfter 100mm max. 100m³/h
- 1 x Bodenablauf
- 1 x Frischwasseranschluss 3/4"
- 1 x Abwasseranschluss HT-Rohr/DN 110

Das Produkt kann abweichen, die Zeichnung ist gegebenenfalls nicht maßstabsgetreu.
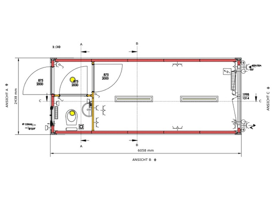
Bürocontainer mit WC
(20 Fuß)
Dieser Container bietet mit einem separat zugänglichen WC und zwei großen Fenstern viel Komfort und Licht. Je nach Ausstattung eignet er sich als Büro-, Aufenthalts- oder Umkleideraum – kompakt und funktional zugleich.
- 6 m x 2,5 m (ca. 15 m2)
- 4-6 Personen
- 1 Vorraum, 1 Büroraum mit Fenster, 1 Sanitärraum mit Fenster, WC und Waschbecken
Technische Daten (1/2):
- 1 x Doppelflügelfenster mit Dreh-/Kippbeschlag, Kunststoffrollladen
- 1 x Sanitärfenster 650 x 500 mm mit Kippbeschlag
- 3 x ZK-Türelement Hörmann 875 x 2.000 mm, 1 x Türhalter/Willyhaken
- 1 x Windfang
- 1 x E-Konvektor 2 KW, 1 x E-Konvektor 1 KW
- 2 x BAP-Spiegelrasterleuchte 2x36W, 2 x Nurglasleuchte
- 1 x Kabeldurchführung
- 6 x Doppelsteckdose, 2 x Einzelsteckdose
- 3 x Schalter, 2 x CEE-Steckverbindungen 400V/32A
Technische Daten (2/2):
- 1 x Handwaschbecken 450 x 320mm incl. Einhebelmischbaterie (Standard Kaltwasser)
- 1 x WC mit Spülkasten
- 1 x GFK-Duschkabine mit Duschvorhang, incl. Einhebelmischbatterie
- 1 x Feuchtraumlüfter 100mm max. 100m³/h
- 1 x Bodenablauf
- 1 x Frischwasseranschluss 3/4"
- 1 x Abwasseranschluss HT-Rohr/DN 110

Das Produkt kann abweichen, die Zeichnung ist gegebenenfalls nicht maßstabsgetreu.
Bürocontainer mit WC & Dusche
(20 Fuß)
Ob Sanitär-, Aufenthalts-, Wohn-, Schlaf- oder Bürocontainer – dieses Modell vereint alles in einem. Mit integriertem Tageslicht-Nassraum und hohen Hygienestandards bietet er maximale Funktionalität und Komfort für längere Einsätze.
- 6 m x 2,5 m (ca. 15 m2)
- 4-6 Personen
- 1 Vorraum, 1 Büroraum mit Fenster, 1 Sanitärraum mit Fenster, Dusche, WC, Waschbecken
Technische Daten:
- Sie legen die Details fest
Spezial-Bürocontainer nach individuellen Vorgaben
Sie wollen kein vorgefertigtes Modell, sondern eine spezielle Größe oder besondere Ausstattung? Kein Problem! Wir planen für Sie gerne eine individuelle Raumlösung, die sich exakt an Ihre Anforderungen und den Einsatz vor Ort anpasst.
- nach Wunsch
- nach Wunsch
- nach Wunsch
ZUSATZAUSSTATTUNG
Möbel für den Bürocontainer
Damit der Bürocontainer optimal zu Ihrem Arbeitsalltag passt, können die Möbel individuell ausgewählt werden. Ob Schreibtisch, Stuhl oder Aktenschrank – die passende Einrichtung sorgt für Ordnung, Komfort und effizientes Arbeiten von Anfang an.
- Garderobe
- Mini-Küche (860 x 1.000 cm)
- Kühlschrank
- Doppelbett (auch als Einzelbett verwendbar)
- Klimastandgerät
- Schreibtisch
- Besprechungstisch (160 x 80 cm)
- Bürodrehstuhl
- Stapelstuhl
- Aktenschrank
- Rollcontainer
- Doppelspind
- Mülleimer
Gerne besprechen wir mit Ihnen ein Einrichtungskonzept für Ihr individuelles Vorhaben.
Ergänzungen für Ihren individuellen Bedarf
Das richtige Zubehör macht den Bürocontainer maximal flexibel. Ob Frischwassertank, Abwassertank oder Stromkabel – mit den passenden Ergänzungen ist der Container schnell einsatzbereit, unabhängig vom Standort.
- Hochtemperatur-Rohr (HT-Rohr)
- Abwasserbögen
- Frischwasserleitung (ohne Begleitheizung)
- Stromkabel
- Stromschleife
- Kanalabdeckung
Sie haben schon einen Bürocontainer? Mit unserem Zubehör machen wir ihn schnell vollständig einsatzbereit.
DIENSTLEISTUNGEN
Services rund um den Bürocontainer

Containertransport
- Termingerechte Anlieferung zum Einsatzort
- Ausrichtung und standsichere Aufstellung des Containers
- Abholung nach Projektende
- optional: Umsetzen des Containers während der Mietzeit

Frischwasserversorgung
- Lieferung von Frischwasser
- Fachgerechte Befüllung der Frischwassertanks
- optional: regelmäßige, feste Lieferintervalle
- optional: kurzfristige Nachlieferung bei Mehrbedarf

Unterhaltsreinigung
- Regelmäßige Innenreinigung (nass/trocken) sämtlicher Oberflächen
- Nachfüllen von Verbrauchsmaterialien
- Sichtkontrolle auf Schäden oder Mängel
- Einhaltung geltender Hygienestandards
- optional: Reinigung auf Abruf (24/7 erreichbar)
FAQ
Häufige Fragen
Hier finden Sie Antworten auf häufige Fragen rund um unsere Bürocontainer.
Kann ich die Bürocontainer individuell einrichten oder erweitern?
Ja, unsere Bürocontainer lassen sich ganz nach Ihren Vorstellungen gestalten und erweitern.
Sie können Ausstattung, Möblierung und Raumaufteilung individuell wählen – von einer Mini-Küche über Schreibtische bis hin zu zusätzlichen Containermodulen für mehr Platz.
Durch das modulare System sind spätere Erweiterungen jederzeit möglich, sodass sich der Container flexibel an veränderte Anforderungen anpassen lässt.
Mietcontainer Büro: Kann ich diesen auch im Winter nutzen?
Ja, unsere mobilen Bürocontainer sind beheizt und somit auch im Winter zuverlässig nutzbar.
Alle Leitungen und Anschlüsse sind frostgeschützt, sodass ein reibungsloser Betrieb auch bei niedrigen Temperaturen gewährleistet ist.
Miete Bürocontainer: Welche Vorraussetzungen müssen erfüllt sein, wenn man einen Bürocontainer mieten möchte?
Damit Ihr Bürocontainer problemlos aufgestellt werden kann, sollte der Untergrund eben, tragfähig und für ein Schwerlastfahrzeug gut erreichbar sein (bis 20t, 20m Länge, 3m Breite, 4m Durchfahrtshöhe).
Sie müssen sich außerdem um die nötigen Anschlüsse (Strom, ggf. Wasser) sowie um eventuell notwendige Genehmigungen kümmern.
Eine Ansprechperson sollte bei Lieferung und Abholung vor Ort sein, damit der Aufbau reibungslos erfolgen kann.
Benötige ich für einen Bürocontainer eine Stell- oder Baugenehmigung?
Ob eine Genehmigung nötig ist, hängt von der Dauer und Art der Nutzung ab.
In Bayern gilt ein Bürocontainer grundsätzlich als bauliche Anlage und ist damit meist genehmigungspflichtig – vor allem, wenn er länger steht oder an Strom, Wasser oder Abwasser angeschlossen wird.
Wird der Container jedoch nur vorübergehend (unter drei Monaten) genutzt, kann er als sogenannter „fliegender Bau“ gelten und ist in der Regel genehmigungsfrei.
Im Zweifel empfiehlt es sich, die Anforderungen mit dem zuständigen Landratsamt oder der Gemeinde abzuklären.
Welche Vorteile bietet ein Bürocontainer gegenüber einem Festbau?
Ein Bürocontainer ist deutlich flexibler, schneller verfügbar und kostengünstiger als ein Festbau. Er lässt sich innerhalb weniger Tage aufstellen, bei Bedarf erweitern oder an einen anderen Standort versetzen – ideal für temporäre Projekte oder wechselnde Einsatzorte.
Wirtschaftlich lohnt sich ein Bürocontainer in der Regel bis zu einer Standzeit von etwa drei bis fünf Jahren. Bei einer längeren, dauerhaft geplanten Nutzung kann ein Festbau langfristig die günstigere Lösung sein.
KUNDENSTIMMEN
Das sagen unsere Kunden

Bei der Realisierung größerer Projekte im kommunalen Bereich und auch der Veranstaltungsszene greifen wir immer wieder gerne auf die bewährten Containerlösungen von BY-CONTAINER zurück. BY-CONTAINER ist für uns der Top-Partner, um herausfordernde Aufträge zuverlässig zu stemmen. Ich kann den Anbieter uneingeschränkt weiterempfehlen.
Victor Russo
Containi GmbH

Ich wollte mich gerne nochmal bei Ihnen melden und mich bedanken für den reibungslosen Ablauf und die gute Zusammenarbeit. Es hat alles prima geklappt. Der Container war prima und auch Ihr Fahrer war sehr nett.
Hanna Rau
Hofgut Friemar

Kommunikation von allen Seiten einwandfrei! Lieferung, Abholung, Produkt usw. alles super!
Isabell Stepper
MEPS GmbH

Im Rahmen diverser Cateringprojekte freuen wir uns sehr darüber in BY-CONTAINER den perfekten Partner für anspruchsvolle Sanitär- und Kühllösungen gefunden zu haben. Das Unternehmen trägt nicht unerheblich dazu bei, dass jede unserer Veranstaltungen zum vollen Erfolg wird.
Andreas Stadler
Novita Handel und Service

Die Begleitung durch unseren Partner BY-CONTAINER bei unseren Veranstaltungen im behördlichen und kommunalen Umfeld war durchweg überzeugend. Planung, Abstimmung und Umsetzung erfolgten professionell und mit großem Verständnis für die speziellen Rahmenbedingungen im öffentlichen Bereich.
Eine kompetente und vertrauensvolle Zusammenarbeit, die wir jederzeit weiterempfehlen.
Thomas Röhling
Klo4U GmbH

Für unsere Großveranstaltungen mit hohen Besucherzahlen ist die Zusammenarbeit jedes Mal aufs Neue absolut zuverlässig und professionell. Die gesamte Abwicklung verläuft immer termingerecht und reibungslos.
Besonders überzeugt uns die ausgeprägte Kundenorientierung und Flexibilität – selbst bei kurzfristigen Herausforderungen, kritischer Infrastrukturen oder zusätzlichem Bedarf wird schnell und lösungsorientiert reagiert. Egal ob Feiertag oder an den Wochenenden, egal ob Tag oder Nacht.
Klare Empfehlung für Veranstaltungen jeder Größenordnung!
Bastian Schleich
Permanent Entertainment

Wir arbeiten regelmäßig mit der Firma BY-Container zusammen und schätzen das außergewöhnlich hohe Know-how sowie die praxisnahe Lösungsorientierung sehr. Insbesondere bei großen kommunalen Aufgabenstellungen und unter schwierigen Rahmenbedingungen überzeugt BY-Container durch Erfahrung, Zuverlässigkeit und Flexibilität.
Auch bei Einsätzen unter besonderen Anforderungen, etwa Übungen der Armee in unwegsamem Gelände, zeigt sich, dass hier echte Profis am Werk sind, die nicht nur theoretisch planen, sondern praxisgerecht umsetzen.
Besonders hervorzuheben ist, dass bei auftretenden Problemen sehr schnell reagiert wird und stets unkomplizierte, pragmatische Lösungen im Sinne des Auftraggebers gefunden werden. Die Zusammenarbeit ist durchweg professionell, unkompliziert und lösungsorientiert. Termine werden eingehalten, Herausforderungen realistisch eingeschätzt und souverän gemeistert.
Aus unserer Sicht ein absolut verlässlicher Partner, den wir uneingeschränkt weiterempfehlen.
Markus Kranzer
AWE Umweltservice GmbH

Bereits seit längerer Zeit arbeiten wir erfolgreich mit BY-CONTAINER zusammen und haben gemeinsam mehrere Veranstaltungen realisiert. Die kontinuierliche professionelle Zusammenarbeit hat über die Jahre ein hohes Maß an Vertrauen geschaffen, auf das wir uns jederzeit verlassen können.
Hervorzuheben sind insbesondere die netten und zugleich sehr kompetenten Ansprechpartner, die jederzeit lösungsorientiert agiert haben. Die Kommunikation war stets transparent und verbindlich, wodurch Abstimmungen schnell und reibungslos erfolgen konnten. Auch die Bearbeitungszeiten waren bemerkenswert zügig – selbst bei kurzfristigen Anforderungen.
Insgesamt eine sehr professionelle Leistung, die wir gerne weiterempfehlen und bei zukünftigen Projekten erneut in Anspruch nehmen werden.
Alexander Thiel
Craft Veranstaltungs AG München

Im Rahmen unserer mehrtägigen Veranstaltungen mit entsprechend hohem organisatorischen und logistischem Aufwand war die Zusammenarbeit mit BY-CONTAINER durchweg unkompliziert und zuverlässig. Gerade bei Projekten dieser Größenordnung sind eine präzise Planung und flexibel Umsetzung entscheidend – beides wurde hier in vollem Umfang erfüllt.
Besonders hervorzuheben ist die ständige Erreichbarkeit sowie die durchgehend strukturierte und transparente Kommunikation. Abstimmungen verliefen effizient, Rückmeldungen erfolgten zeitnah und auch bei kurzfristigen Anpassungen wurden schnell praktikable Lösungen gefunden.
Die gesamte Abwicklung – von Planung über die termingerechte Lieferung bis hin zur Betreuung während der Veranstaltung war hervorragend. Wir schätzen die partnerschaftliche Zusammenarbeit sehr.
Professionell, zuverlässig und absolut empfehlenswert – wir freuen uns auf weitere gemeinsame Projekte!
Patrick Gallenmüller
Lemon AG